Renovations

Deepen your love for home.

Home Renovation Services in Greater Victoria

Transform your home with confidence.

A home renovation should be an exciting process of transformation, but the fear of budget overruns, endless delays, and daily disruption can make it a stressful reality. Little Crow Projects brings the same professional management, meticulous craftsmanship, and financial oversight from our custom home division to every renovation. We provide a clear, organized, and collaborative process to ensure your project is completed on time, on budget, and with the exceptional quality your home deserves.

01

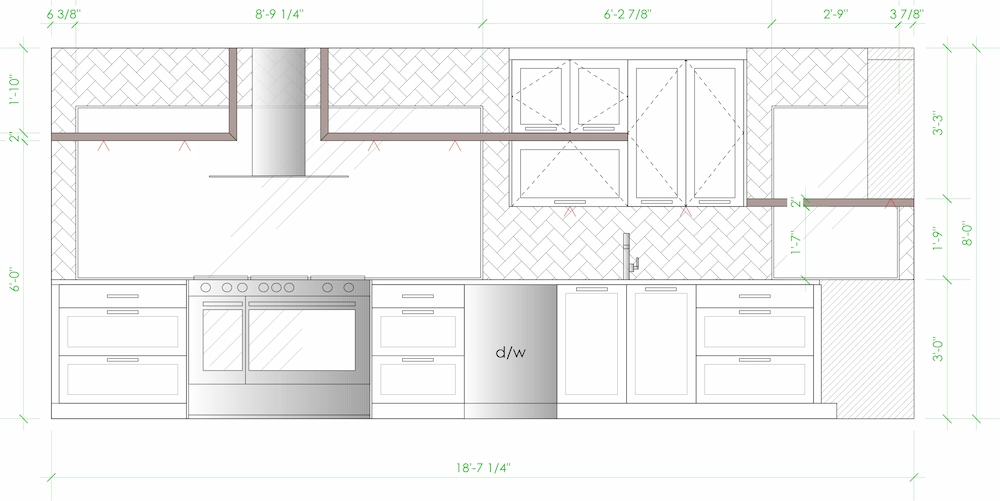
DESIGN & PLANNING

Every great renovation starts with a detailed plan. We collaborate with you and top industry professionals, like the award-winning Spaciz Design Company, to refine your vision. This phase is dedicated to creating a comprehensive design, a transparent budget, and a clear timeline, ensuring there are no surprises once work begins.
Architectural kitchen elevation drawing showing upper and lower cabinets, stove, range hood, dishwasher, sink, shelves, and tile backsplash with measurements and dimensions labeled in green above and beside the layout.
A room under renovation with floors covered in protective sheets, a ladder, painters tape on doors and windows, work lights, a bucket, and painting equipment scattered on the floor.

02

SITE PREPARATION

We treat your home like our own. Before the renovation begins, our team takes meticulous care to protect your space. We establish dust barriers, cover flooring, and manage all demolition and prep work with a focus on cleanliness and safety, respecting your property and minimizing the impact on your daily life.

03

FINISHING

Our team of Red Seal Carpenters and trusted trade partners executes your renovation and final finishing with an unwavering commitment to quality. Your dedicated Project Manager provides consistent, clear communication, keeping you informed every step of the way. We manage every detail to ensure your project runs smoothly and results in a beautiful transformed space.
Modern kitchen with white cabinets, stainless steel appliances, a large island with four gray stools, pendant lights, and a window over the sink showing greenery outside. Countertops are white, and the floor is light wood.
Modern bathroom with gray marble floors and walls, glass shower enclosure, white cabinets with black handles, under-cabinet lighting, a rectangular sink, and a large window with a hanging pendant light.

04

WARRANTY & SUPPORT

Our commitment to you continues after the final walkthrough. We stand behind our work with a comprehensive warranty on our craftsmanship and provide dedicated post-project support. Our goal is your complete satisfaction and lasting confidence in the quality and durability of your newly renovated home.
Read More >

OUR COMMITMENT

Our promise to you.

Treat your home like our own.
We build every home with an immense sense of pride, care, and respect for the trust you place in us. Our commitment to quality craftsmanship means we never cut corners, ensuring your home is built to last.
Get in touch >
Communication is key.
We believe a successful project is built on a foundation of clear, consistent, and transparent communication. You will be kept informed and involved at every stage, ensuring the process is as collaborative as it is creative.
Meet our team >
Here for the long haul.
Our relationship doesn’t end on possession day. We stand behind our work with a comprehensive warranty and a commitment to ensuring your complete satisfaction, providing you with lasting confidence in your home.
Warranty information >
"Ryan and his crew are defined by kindness, patience, and transparency. They build trusting relationships and handle any situation with grace. I can confidently say they set the standard."
Tracey Lamoureux |
Spaciz Founder and former Principal Designer

Our signature projects.

Our featured projects demonstrate our unique ability to deliver the meticulous quality of a custom builder at the proven scale of a community developer.
Ready to get your project started?